Residencial Torres Quevedo 35
Lujo y Diseño en el Corazón Urbano de Elche
Una oportunidad exclusiva en Elche. Residencial Torres Quevedo 35 es un proyecto boutique que consta de tan solo 5 viviendas de dos dormitorios amplios, con trastero incluido y una exclusiva piscina comunitaria en la planta cubierta. Concebido como una promoción de lujo, este edificio combina una fachada moderna y práctica, diseñada tanto para un uso estético como funcional, revalorizando su inversión desde el primer día.
Un Nivel Superior de Calidad
Este edificio ha sido diseñado y proyectado con unas calidades y terminaciones fuera de lo habitual en promociones de la zona. Cada detalle ha sido estudiado para garantizar el máximo confort, tranquilidad y durabilidad para sus propietarios:

Acabados de Prestigio
Trabajamos con marcas líderes en el sector, como Porcelanosa, en alicatados, baños y cocinas.

Confort Acústico Total
Se ha implementado la insonorización de bajantes comunitarias en todo su trayecto y la colocación de láminas anti-impacto en el pavimento para la ausencia de ruidos vecinales.

Seguridad y Control
El edificio cuenta con prestaciones accesorias de seguridad, incluyendo cámaras de vigilancia comunitaria 24 horas en accesos y zonas comunes.

Personalización
Ofrecemos la posibilidad de personalizar todos aquellos elementos y estancias de la vivienda (pavimentos, azulejos, encimeras, etc.), siempre que se adecúen al tiempo de ejecución de la promoción.

Piscina Comunitaria
La promoción cuenta con una piscina comunitaria ubicada en la planta cubierta, un espacio único diseñado para el relax y el disfrute del clima mediterráneo con total privacidad y vistas privilegiadas.
Consulta la Memoria de Calidad
La excelencia de nuestra construcción se detalla en nuestra Memoria de Calidades. Descargue el documento completo para conocer en profundidad las especificaciones técnicas de la cimentación, estructura, acabados, carpintería, equipamientos y sistemas de climatización con Aerotermia y placas solares para apoyo energético.
Viva en un espacio moderno, funcional y diseñado para el máximo bienestar en una de las mejores ubicaciones de Elche.
«Los renders e imágenes tienen caracter orientativo, sin vinculación contractual.»
Disponibilidad de viviendas
TIPO DE VIVIENDA | SUPERFICIE CONSTRUIDA | PRECIO | PLANOS | DISPONIBILIDAD |
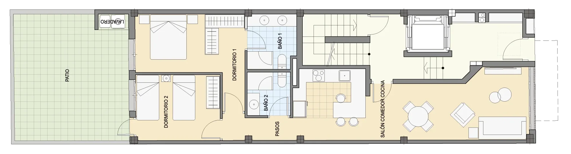
PLANTA BAJA | SUP. CONSTRUIDA: 108,80 m² | ... | Plano | RESERVADO |
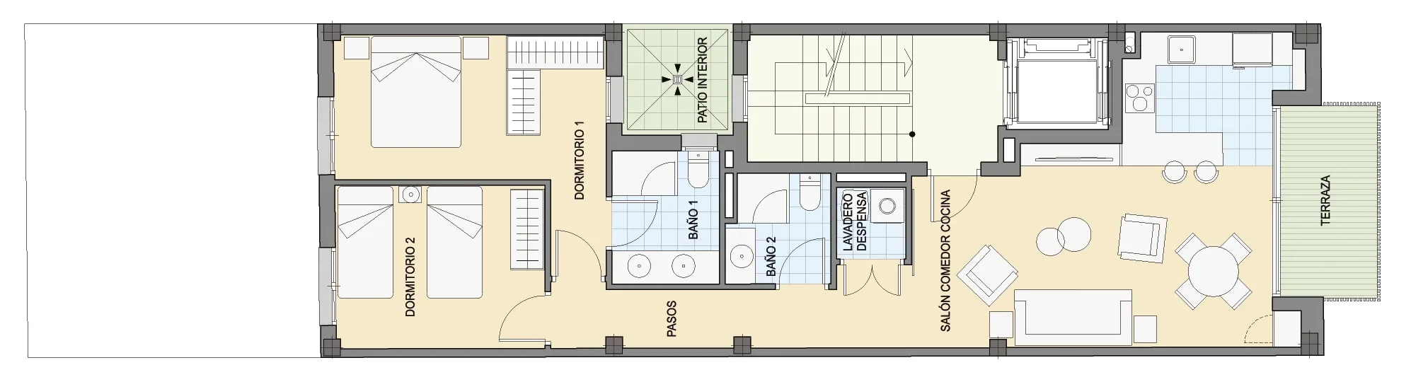
PLANTA 1º | SUP. CONSTRUIDA: 87,30 m² | 220.000€ | DISPONIBLE | |
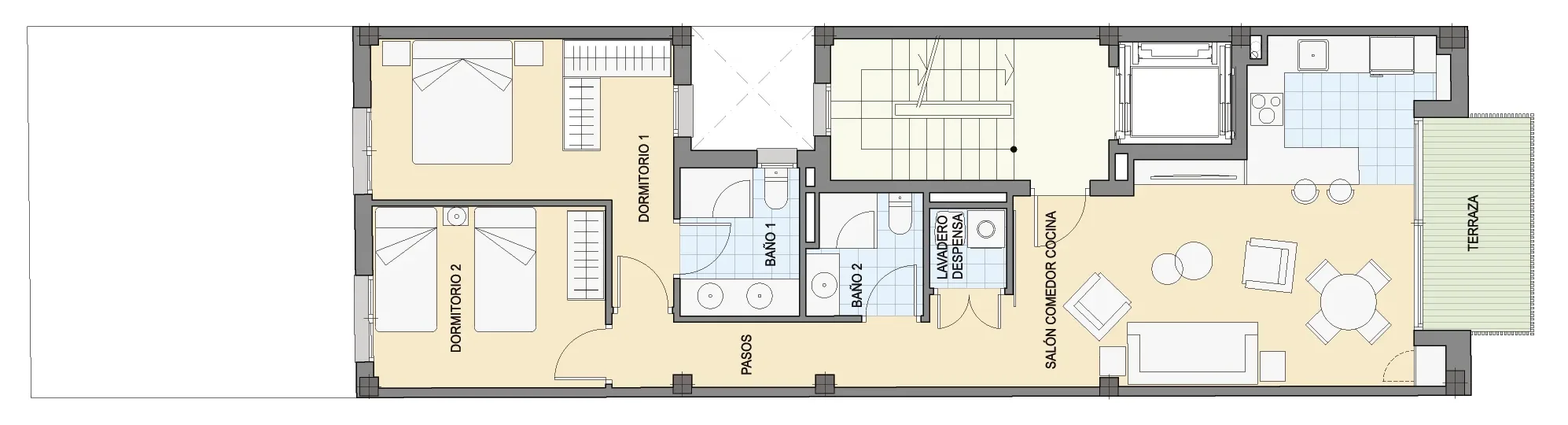
PLANTA 2º | SUP. CONSTRUIDA: 87,30 m² | ... | Plano | RESERVADO |
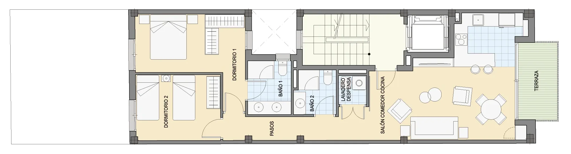
PLANTA 3º | SUP. CONSTRUIDA: 87,30 m² | 230.000€ | DISPONIBLE | |
PLANTA 4º | SUP. CONSTRUIDA: 87,30 m² | ... | Plano | RESERVADO |
Solicite Más Información sin Compromiso
¿Le interesa Residencial Torres Quevedo 35? Rellene el siguiente formulario para que nuestro equipo comercial se ponga en contacto con usted. Le facilitaremos la disponibilidad actual, resolveremos sus dudas o le concertaremos una cita previa para conocer todos los detalles de esta exclusiva promoción.